代理商之痛何其多!
產品同質化、營銷同質化、瓷磚價格浮動大、門店冷清、代理商利潤空間一縮再縮......
請問路在何方,如何才能破解終端困局之境呢?
對此,大局已定,破局勢在必行!
作為陶瓷代理商,
大致會有以下幾種“痛”
選擇之痛 ——同質化嚴重,套路還特別深

資金之痛——各種費用綁架,還沒有做就慫

經營之痛——上游跨界打劫,同行大牌擠壓

那么,如何破局?
伊加國際作為時代的覺悟者,
一直站在代理商的立場想問題,
同時為了最大程度解決
代理商痛點并提供整套運營模式的
系統解決方案。
對此,伊加國際一馬當先,
全新推出領先行業戰略
AGA的痛點殺手锏——
“代理進口瓷磚,享受免費裝店”
為代理商破解終端困局之勢
AGA的痛點殺手锏——免費模式
樣板全免費
裝店全免費
裝修高標準
入駐即經營

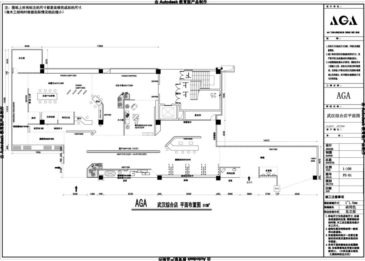
AGA第一個免費裝店案例——
武漢歐亞達店面面積共550方,
免費裝店推出僅14天時間
成功簽約并投入動工1個
達成簽約合作客戶17個
強烈合作意向客戶35個
伊加國際作為時代的覺悟者
肩負起幫扶代理商提升
終端市場的戰斗力的使命

AGA第一個免費裝店案例——
武漢歐亞達店面面積共550方,
免費裝店推出僅14天時間
成功簽約并投入動工1個
達成簽約合作客戶17個
強烈合作意向客戶35個
伊加國際作為時代的覺悟者
肩負起幫扶代理商提升
終端市場的戰斗力的使命


△武漢歐亞達店
AGA的經營殺手锏——核心壁壘
從企業的結構升級、陶瓷市場發展、行業競爭發展模式等等,終于找到屬于AGA品牌的壁壘,通過未來對終端落地的“進口+國產”的全新運營模式、三大硬實力、四大軟實力、終端業績倍增殺手锏、六脈神劍等等方面,深度解剖了AGA品牌賦能崛起的商業模式和未來的盈利模式。讓AGA品牌以一個全新的姿態在瓷磚領域中獨樹一幟,成績斐然。
對此,“代理進口瓷磚,享受免費裝店”的商業模式出發點是為了把握全新的終端市場機會,使得代理商能夠有效的捕捉終端市場新機會,這就是商業模式不斷發展的最大動力。

〖更多資訊,長按關注《創新陶業》手機網〗




